Живи и радуйся
сейчас!
Иркутская обл., Иркутский р-н,
с. Пивовариха, мк-н Теплый Стан

Готовые и строящиеся дома с централизованным водоснабжением от 9 400 тыс. руб.


Наше качество - ваша экономия. Ни копейки на устранение недостатков.
Используем материалы с повышенным ресурсом и применяем технологии контроля на каждом этапе,  чтобы гарантировать отсутствие проблем в будущем!

  • Собственная управляющая компания и готовые коммуникации
  • Единый архитектурный стиль
  • Плановая высадка хвойных деревьев

Жизнь на природе
с городским комфортом

Коммуникации
В поселке круглый год бесперебойное централизованное водоснабжение и электричество
Чистота и порядок
За чистотой следит собственная управляющая компания
Охрана
Безопасность обеспечивают собственная круглосуточная охрана, видеонаблюдение и огороженная территория
Асфальтированные дороги
До поселка и на территории качественные асфальтированные дороги шириной 12 м
Высокоскоростной интернет
В экопоселке проложена оптоволоконная сеть выделенной скоростью 100 мбит/с, есть возможность подключения интернета и цифрового ТВ
Современное благоустройство
На территории расположены общее место для отдыха, детская и спортивная площадка, пешеходные дорожки и скамейки, общественная баня

Все нужное — рядом

15 МИНУТ
От центра Иркутска
5 МИНУТ
До Байкальского тракта
1 ЧАС
До озера Байкал
Всего в 3 минутах

от экопоселка расположены супермаркеты, аптеки, строительные магазины, детские сады, школа и физкультурно-оздоровительный комплекс, остановки общественного транспорта. Также вблизи расположены конный клуб и Храм Покрова Пресвятой Богородицы

Нажмите на любой дом для выбора

×
Адрес:
Срок сдачи -
Площадь кв.м. -
Кадастровый номер:

Выберите проект

Показать список Скрыть список
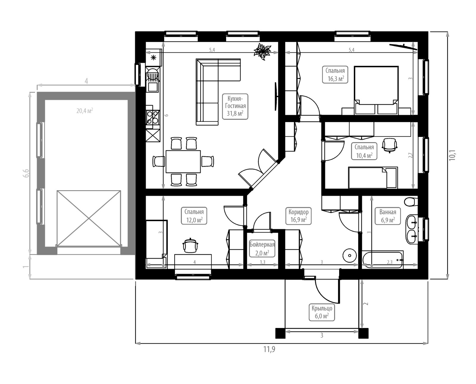
102
Площадь, кв.м
1
Количество этажей
4
Количество комнат
Узнать стоимость
Доступно к покупке в рассрочку и ипотеку
Дополнительное описание
Одноэтажный дом площадью 102 кв. м. Большая гостиная с кухней 31,8 кв. м, выполненная в формате студии. Просторная ванная комната, которой могут пользоваться сразу несколько членов семьи для экономии времени. Три спальни.
Проект S5 Стандарт 102кв.м
Участок не выбран

Комплектация домов

Базовая
  • Внутренняя отделка
  • Стеклопакеты
  • Двойной переливной септик
  • Механические ворота
Узнать стоимость
Комфорт
  • Базовая комплектация
  • Электропривод ворот
  • Сухая стяжка
  • Теплый пол
  • Разводка ХВС, ГВС
Узнать стоимость
Чистовая
  • Комплектация Комфорт
  • Штукатурка с глянцеванием
  • Водосточная система
  • Электропроводка до комнат
  • Архитектурная подсветка
  • Снегозадержатели
  • 2х100л водонагревателя
  • Терраса
Узнать стоимость

Условия покупки

Покупка готового дома

Вы можете купить готовый дом по договору купли-продажи в МФЦ. Возводятся дома из бруса, газобетона и кирпича.

Покупка строящегося дома

Вы можете приобрести строящийся дом или запланировать строительство на ближайший год.

Этапы покупки

01 /

Покупка земельного участка

510 тыс. руб. за сотку земли

В стоимость входит:

  • Централизованное водоснабжение
  • Выделенная мощность электричества 15 кВт
  • Асфальтированное дорожное покрытие
  • Индивидуальный подъездной путь к каждому участку
  • Детская спортивная площадка, прогулочная зона и закрытая охраняемая местность
  • Уличное освещение на территории поселка
  • Озеленение территории
  • Общественная парковка
  • Индивидуальная парковочная зона для каждого участка на 3 автомобиля
02 /

Подряд на строительство дома

от 67 тыс. руб. за кв. м.

Оплата производится в 4 этапа, на каждом из которых аванс - 25%

  • Подписание договора
  • Возведение фундамента
  • Возведение коробки дома
  • Монтаж кровли
Или /

Покупка готового дома

В трех вариантах комплектации

Возводим дома из:

  • Бруса
  • Газобетона
  • Кирпича

Способы оплаты

100% оплата

При оплате полной стоимости участка или дома действуют специальные условия. При оплате строительства кирпичного дома в 100% размере, делаем скидку до 500 тыс. руб.

100% Оплата

Рассрочка от застройщика

Застройщик предоставляет рассрочку на индвидуальных условиях

Рассрочка от застройщика

Ипотечные программы для строительства дома

Семейная ипотека
IT-ипотека
Ипотека с гос.поддержкой
  • Ставка - от 5,6%
  • Размер первоначального взноса - от 15 до 20,1%
  • Максимальная сумма кредита - до 6 000 000 руб.
Материнский капитал
Селькая ипотека от 3%

Строительство дома от Россельхозбанка

  • Размер первоначального взноса - 20,1%
  • Максимальная сумма кредита - до 6 000 000 руб. на каждого из супругов
Материнский капитал

Ипотечные программы на покупку готового дома

IT-ипотека

  • Ставка - от 5,6%
  • Размер первоначального взноса - 15%
  • Максимальная сумма кредита - до 12 000 000 руб.
Логотипы банка Логотипы банка Логотипы банка
IT-ипотека

КОМБО-ипотека

  • Ставка - от 8% до 14%
  • Размер первоначального взноса - 30,1%
  • Максимальная сумма кредита - до 15 000 000 руб.
Логотипы банка Логотипы банка
КОМБО-ипотека

Общие условия

  • Ставка - от 16,7% до 18,7%
  • Размер первоначального взноса - 30,1%
  • Максимальная сумма кредита - до 12 000 000 руб.
Логотипы банка Логотипы банка Логотипы банка
IT-ипотека

Материнский капитал

Использовать материнский капитал можно как при полной оплате, так и при рассрочке. Также его можно использовать для ипотеки — как первоначальный взнос или на погашение кредита.

Материнский капитал

Банки-партнеры

О девелопере и подрядчике

Оказал помощь в:
  1. Программе переселения из ветхого и аварийного жилья в Иркутской области
  2. Строительстве горно-обогатительного комбината в Забайкальском крае
  3. Осуществлении проектов ОАО “РЖД”
10 лет
На рынке недвижимости
4 месяца
Срок возведения объектов
200 объектов
Введено в эксплуатацию

Основные принципы

Контроль во благо качества

При строительстве все этапы работ на объектах ежедневно находятся под личным контролем генерального директора и главного инженера.

Ответственность и прозрачность

Сдаем дома только того качества, в которые заселились бы сами. Создали максимально понятную и удобную для людей систему оплаты.

Главная миссия компании

Строительство коттеджного поселка, где есть все для комфортной и безопасной жизни.

Ход строительства

июнь 2022 сентябрь 2022 декабрь 2022 Выставка 31.03-01.04 апрель 2023 август 2023 октябрь 2023 декабрь 2023 январь 2024 март 2024 апрель 2024 май 2024 июнь 2024 август 2024 апрель 2025 сентябрь 2025 октябрь 2025 Малоэтажная Сибирь март 2026г.

Раскрытие информации

Microsoft Word iconДоговор на приобретение земельного участка
Microsoft Word iconДоговор на строительство жилого дома

Принимая условия настоящего Соглашения Пользователь выражает свое согласие на:

Предоставление своих персональных данных, включающих Фамилию, Имя, Отчество, адрес электронной почты, номер контактного телефона, город, организацию, должность для их обработки Компанией свободно, своей волей и в своем интересе.
Цель обработки персональных данных:
- предоставление Пользователю услуг Сайта;
- направление уведомлений, касающихся услуг Сайта;
- подготовка и направление ответов на запросы Пользователя;
- направление информации о мероприятиях, проводимых Компанией;
- направление информации о продуктах и услугах Компании.
Перечень действий с персональными данными, на которые Пользователь выражает свое согласие: сбор, систематизация, накопление, хранение, уточнение (обновление, изменение), использование, обезличивание, передача третьим лицам для указанных выше целей, а так же осуществление любых иных действий, предусмотренных действующим законодательством РФ как неавтоматизированными, так и автоматизированными способами. Компания обязуется принимать все необходимые меры для защиты персональных данных Пользователя от неправомерного доступа или раскрытия.